דף הבית » מקומות ואתרים » פרויקט רובע שדה דב » פרויקט שדה דב – ההצעה של יער אדריכלים
http://yaar.yaar.net/
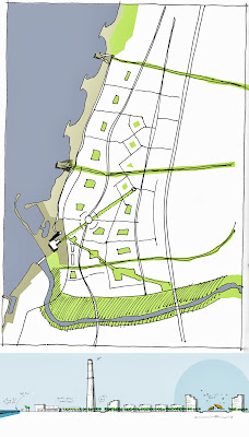
סכימת תכנון
למעבר לאינסטגרם – לחצו על התמונה
כלי נגישות